Prosjektdetaljer

Prosjekt

Ildjernåsen Leilighetskompleks

Beskrivelse

Adresse: Richard Baches vei, 1450 Nesoddtangen

Dato for gjennomføring: 2018

Investor: Varden Eiendomsutvikling AS

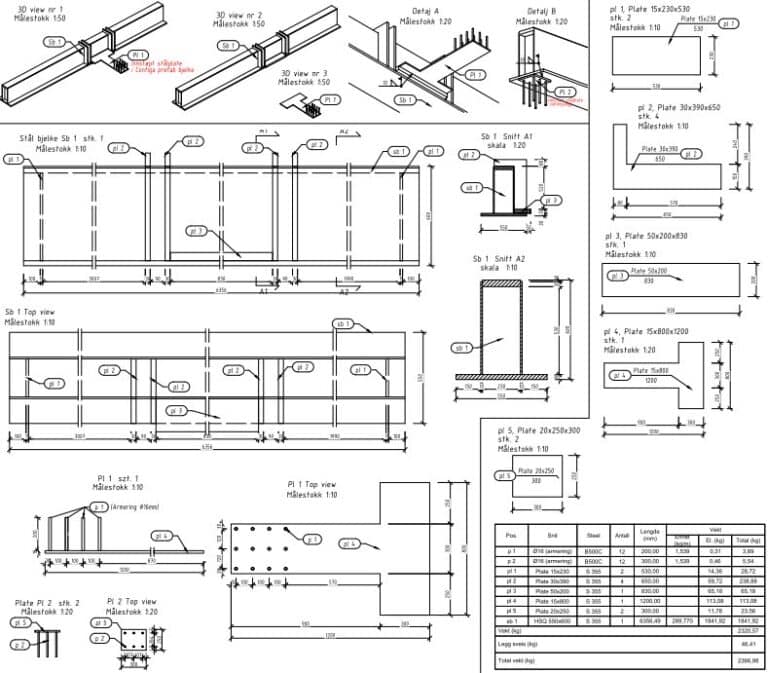
Prosjektet omfatter et leilighetskompleks med fire bygninger i stålkonstruksjon og hulldekker, plassert over en underjordisk garasje i armert betong.

Arbeidet inkluderte:

  • Beregninger og tegninger for garasje i armert betong og bakvegg (høyde: fire etasjer)

  • Stabilisering av skråning med fjellbolter

  • Beregninger og tegninger av HSQ-sveiset stålbjelke

  • Energianalyse

Kom i gang

Be om en uforpliktende prat